
Type de projet :
Neuf
Maître d’ouvrage
Commune de Briquebec-en-Cotentin
Année
2025
Coût de l’opération
479 547
Surface SHON
364
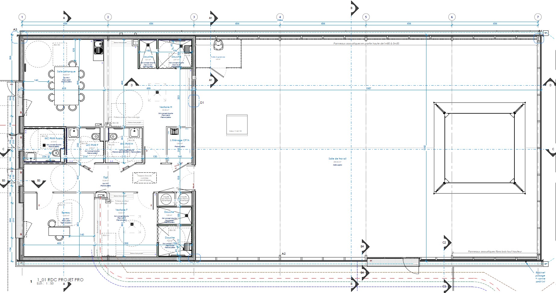
Implantée sur le site sportif de la commune de Bricquebec-en-Cotentin, la salle de sport se compose d’un volume simple construit en charpente bois avec une conception économique et fonctionnelle. L’enveloppe est réalisée en panneaux sandwich proposant une finition aspect ardoise qui s’harmonise dans le tissu urbain local. De larges ouvertures en panneaux de polycarbonate translucides blanc ou parfois vitrées garantissent de généreux apports de lumière naturelle dans les locaux.
La construction se divise en deux zones. La première, chauffée, propose les vestiaires sportifs et un bureau pour le club de boxe ; ainsi qu’un local et sanitaire public dédiés au club de pétanque. La seconde zone, d’une superficie représentant les deux tiers du bâtiment, offre une vaste halle de boxe composée des équipements dédiés à cette pratique sportive. Elle est pensée pour être fonctionnelle et lumineuse, avec des matériaux bruts propice à l’appropriation, ainsi que des modules rapportés en fibre de bois par endroit pour en améliorer la qualité acoustique.
Caractéristiques du projet
Type de projet :
Neuf
Maître d’ouvrage
Commune de Briquebec-en-Cotentin
Année
2025
Coût de l’opération
479 547
Surface SHON
364
Description
Implantée sur le site sportif de la commune de Bricquebec-en-Cotentin, la salle de sport se compose d’un volume simple construit en charpente bois avec une conception économique et fonctionnelle. L’enveloppe est réalisée en panneaux sandwich proposant une finition aspect ardoise qui s’harmonise dans le tissu urbain local. De larges ouvertures en panneaux de polycarbonate translucides blanc ou parfois vitrées garantissent de généreux apports de lumière naturelle dans les locaux.
La construction se divise en deux zones. La première, chauffée, propose les vestiaires sportifs et un bureau pour le club de boxe ; ainsi qu’un local et sanitaire public dédiés au club de pétanque. La seconde zone, d’une superficie représentant les deux tiers du bâtiment, offre une vaste halle de boxe composée des équipements dédiés à cette pratique sportive. Elle est pensée pour être fonctionnelle et lumineuse, avec des matériaux bruts propice à l’appropriation, ainsi que des modules rapportés en fibre de bois par endroit pour en améliorer la qualité acoustique.




